École Condorcet Germinal

Programme
Extension Réhabilitation d'une école de 7 classes
Localisation
Liévin
MOA
Ville de Liévin
Équipe
HDM, Akoustik, Atelier Altern
Dates
Livraison 2017
Surface
1700 m²SDP dont 965 réhabilités
Montant
2 410 000 €HT
Statut
Livré

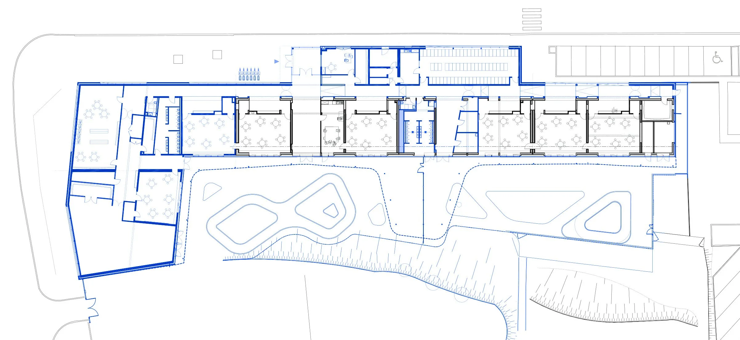
L’enjeu de cette réhabilitation-extension a consisté à donner à l’école maternelle un statut d’équipement public d’enseignement comparable à l’image valorisante véhiculée par l’école élémentaire Floréal attenante.

L’extension proposée se présente donc comme une nouvelle façade qui « recoud » un paysage disparate. Son architecture épouse la parcelle en angle des rues de Sellier et Churchill. Elle s’adapte à la morphologie du lieu pour accrocher le bâtiment aux héberges existantes et refermer l’îlot.

École existante réhabilitée

Les façades en brique aux appareillages variés et les toitures en tuiles font référence à l’architecture traditionnelle, tout en affichant un vocabulaire résolument contemporain.

La cour de récréation est requalifiée par la plantation d’arbres et la mise en place d’espaces ludiques pour les enfants formés par des jeux marqués au sol et des sols caoutchouc colorés.

Le fonctionnement et les circulations ont été soignés. Nous avons fait le choix de disposer l’entrée de l’école en position centrale, afin de limiter la longueur des trajets des parents et pour rendre le quotidien le plus convivial possible. Des alcôves attenantes à chaque salle de classe, permettent aux enfants de déposer leurs affaires et de marquer un temps calme avant d’entrer.

En englobant complétement l’existant, entre circulation commune intelligible et préau fédérateur, le projet propose une refonte esthétique complète. L’intérêt est donc de redonner à l’établissement une image valorisante tout en tirant parti des points forts du site.

Crédits Photos : Maxime Delvaux

Ça pourrait vous intéresser aussi:

Précédent
Précédent

Groupe Scolaire des Deux Sources
Berlencourt-le-Cauroy

Suivant
Suivant

58 Logements sociaux
Dunkerque